Крышные котельные – это современное и эффективное решение для автономного теплоснабжения жилых, коммерческих и промышленных объектов. Их проектирование требует тщательного расчета нагрузок на кровлю, соблюдения норм безопасности, а также грамотного подбора оборудования для стабильной и экономичной работы системы.
В процессе проектирования разрабатываются схемы теплоснабжения, подбираются котлы, рассчитывается тепловая мощность и продумываются решения для газоотведения и вентиляции. Важно обеспечить соответствие всем строительным и техническим нормам для безопасной эксплуатации котельной.
Компания «СтройЭлит» занимается проектированием и монтажом инженерных систем с 2004 года. За это время мы реализовали десятки проектов крышных котельных разной сложности, обеспечивая нашим клиентам эффективные, энергоэкономичные и надежные решения.
Итоговая стоимость проектирования крышной котельной определяется индивидуально. Для получения точной сметы требуется согласовать условия сотрудничества и предоставить исходные данные для составления технического задания.
1. Компактность
Такие котельные не требуют выделения дополнительного пространства, что особенно актуально в городских условиях. Размещение на крыше позволяет рационально использовать территорию и уменьшить затраты на строительство.
2. Снижение тепловых потерь
Благодаря близкому расположению к отапливаемому объекту длина теплотрасс минимальна, что значительно снижает тепловые потери и повышает эффективность системы. Это также уменьшает затраты на обслуживание и ремонт трубопроводов.
3. Экологичность
Современные крышные котельные оснащены системами очистки выбросов, что снижает нагрузку на окружающую среду. Применение высокоэффективных газовых котлов и современных фильтров позволяет свести выбросы загрязняющих веществ к минимуму.
4. Автономность
Такие котельные работают независимо от центральных тепловых сетей, обеспечивая стабильное теплоснабжение даже в условиях перебоев или аварий на магистральных теплотрассах. Это особенно важно для промышленных объектов, жилых комплексов и коммерческих зданий.
Работа котельной зависит от слаженного взаимодействия оборудования, инженерных систем и средств безопасности.
Котлы могут быть газовыми, дизельными или электрическими — выбор зависит от доступного топлива и требуемой мощности. Горелки бывают атмосферными или вентиляторными, обеспечивая эффективное сжигание топлива. Теплообменники передают тепло в систему отопления и горячего водоснабжения. Автоматизация отвечает за контроль температуры, расход топлива и аварийные отключения.
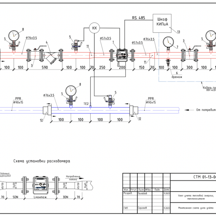
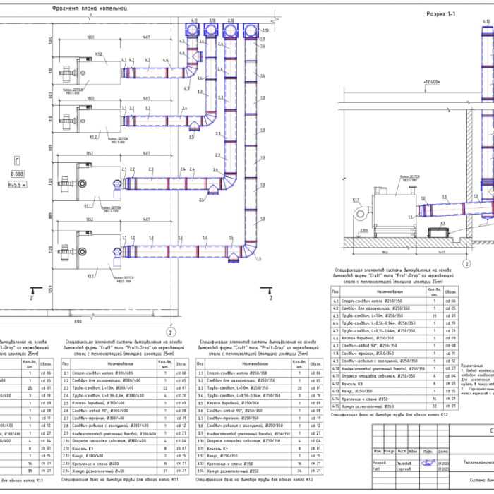
Инженерная часть включает в себя вентиляцию, дымоудаление и водоподготовку. Вентиляция подает воздух для горения и охлаждает оборудование, а система дымоудаления отводит продукты сгорания через дымоход. Водоподготовка фильтрует воду и предотвращает образование накипи, продлевая срок службы системы. Трубопроводная обвязка проектируется с учетом минимизации теплопотерь и повышения общей эффективности котельной.
Система аварийного отключения реагирует на перегрев, скачки давления и утечку газа. Датчики отслеживают концентрацию газа в воздухе, пожарная сигнализация своевременно оповещает о задымлении, а молниезащита предотвращает повреждение оборудования в случае грозовых разрядов.
Проект котельной на крыше требует тщательного подхода и соблюдения множества нормативных требований. Каждый этап этого процесса направлен на то, чтобы обеспечить безопасность, надежность и эффективность будущей системы теплоснабжения.
На этом этапе проводится обследование здания, определяется возможность размещения котельной на крыше с учетом несущей способности перекрытий, ветровых и снеговых нагрузок. Также анализируются существующие инженерные коммуникации и варианты подключения к газовым или электрическим сетям.
Определяются основные параметры котельной: необходимая тепловая мощность, тип котельного оборудования (газовые, дизельные или электрические котлы), схема теплоснабжения, уровень автоматизации и интеграции с системой управления зданием.
Разрабатываются чертежи и схемы, включающие размещение оборудования, прокладку инженерных коммуникаций, расчет гидравлических и тепловых нагрузок. Также выполняются расчеты вентиляции, дымоудаления и акустики, чтобы котельная работала безопасно и бесшумно.
Готовый проект проходит экспертизу и согласование в надзорных органах. Получаются разрешения на установку и подключение к газовым или электрическим сетям, а также соблюдение требований противопожарной безопасности.
Производится закупка оборудования, организация логистики и подготовка строительной площадки. Разрабатывается план работ, учитываются сроки поставок материалов и возможные погодные условия, влияющие на процесс установки.
В России требования к разработке таких систем устанавливаются следующими нормативными документами:
Соблюдение этих нормативов позволяет обеспечить безопасную и эффективную работу крышной котельной, пройти необходимые проверки, а также избежать нарушений при проектировании и эксплуатации.
Сотрудники нашей компании имеют большой опыт проектирования котельных для совершенно разных типов зданий.






Средний срок проектирования составляет 4-8 недель, а монтажные работы занимают от 2 до 6 месяцев в зависимости от сложности объекта.
Да, возможно обновление оборудования, автоматизация управления или увеличение мощности системы при соблюдении норм безопасности и получении новых разрешений.
В среднем 15-25 лет, при условии правильного технического обслуживания и использования качественного оборудования.
Необходимо регулярное техническое обслуживание, включая проверку горелок, теплообменников, систем вентиляции и автоматики, а также очистку и диагностику оборудования.
Используются шумопоглощающие материалы, специальные глушители на вентиляционные системы и виброизоляционные крепления для оборудования.






Свяжитесь с нами
Оставьте заявку и мы перезвоним в течение 15 минут