Инжиниринговая компания «СтройЭлит» оказывает услуги проектирования систем вентиляции и кондиционирования объектов любого назначения, масштаба и технической сложности. Квалификация наших специалистов позволяет провести разработку проекта быстро, грамотно и по доступной цене. Необходимые работы выполняются в точном соответствии с действующим стандартами и с применением современного программного обеспечения. В нашей компании вы также можете заключить договор на услуги монтажа вентиляции под ключ по разработанному проекту на выгодных условиях.
Цена разработки проекта вентиляционной системы варьируется в широком диапазоне. На итоговую стоимость услуги влияет множество факторов: от масштабов и назначения объекта до персональных запросов заказчика. Ниже представлены базовые расценки для вентиляции некоторых зданий и сооружений.
Мы производим проектирование систем вентиляции для самых разных объектов, в том числе:
Особенно жесткие требования предъявляются к вентиляции жилых и промышленных объектов, а также заведений общественного питания. Поэтому для проектирования инженерных систем подобных сооружений требуется приглашать квалифицированных специалистов.






Классификация систем вентиляции осуществляется по нескольким признакам. Чаще всего – по характеру движения воздушных масс. В зависимости от этого параметра различают три типа вентиляционных систем:
По принципу работы выделяют приточную и вытяжную вентиляции. Первая основана на притоке свежего воздуха внутрь помещения с одновременным вытеснением отработанного. Вторая базируется на удалении из пространства объекта загрязненных воздушных масс.
Третьим классифицирующим признаком становится назначение вентиляции. По этому параметру различают несколько инженерных систем: производственная, противодымная, для заведений общепита и т.д.
Наши опытные и квалифицированные консультанты помогут выбрать оптимальный вариант. Они предоставят все необходимое для принятия грамотного решения: плюсы и минусы каждого, особенности применения, перечень оборудования и примерный размер сопутствующих расходов.
Наша компания занимается проектированием инженерных систем более 20 лет. За это время отработана простая, надежная и эффективная схема оказания услуги, которая включает такие этапы:
Инженер выезжает на объект для проведения замеров и сбора исходной технической документации.
Выбираем оптимальное проектное решение. Производим расчет стоимости работ. Согласовываем смету с заказчиком.
Формируем и утверждаем с клиентом детальное техническое задание. Подготавливаем и подписываем договор.
Непосредственное выполнение проектных работ (состав проекта определяется ТЗ в зависимости от специфики объекта).
При необходимости – получаем согласование и необходимые разрешения в контролирующих инстанциях.
Передаем заказчику комплект проектной документации, достаточной для быстрого и беспроблемного монтажа вентиляционной системы под ключ.
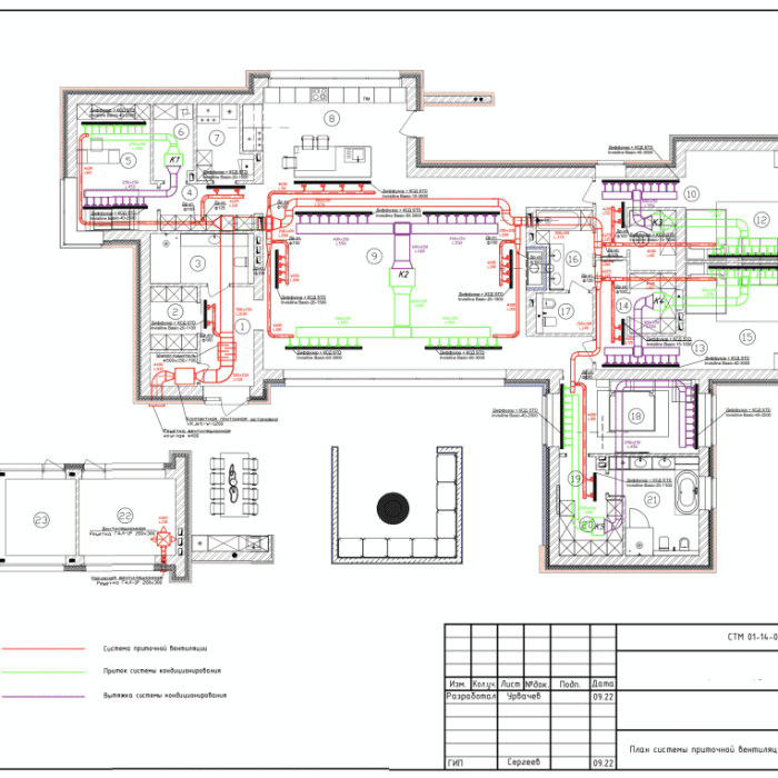
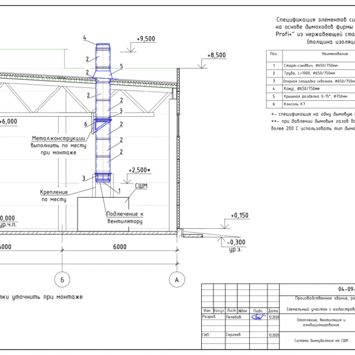
Требования к проектной документации жестко регламентированы на законодательном уровне. Состав проекта предусматривает наличие следующих разделов:
Современные вентиляция и кондиционирование – это сложные технические системы, проектирование которых требует проведения объемных и разнообразных вычислений. Их быстрое и точное выполнение невозможно без специализированного ПО. К числу обязательных расчетов относятся:
Эффективность работы вентиляционной системы в значительной мере определяется качеством разработки проекта. Осуществлять монтаж вентиляции без наличия проектной документации – типовая ошибка многих заказчиков, результатом которой становятся напрасно потраченные деньги и необходимость все переделывать.
В зависимости от сложности объекта и проектируемой системы работы выполняются обычно в течение 1-3 недель.
Решение принимается на основании стандартных критериев: стаж работы, наличие портфолио, отзывы клиентов и стоимость проектирования.
Стоимость проектной документации зависит от масштабов системы кондиционирования, ее технической сложности и уровня требований заказчика.
В зависимости от сложности и размеров объекта срок разработки проекта составит 2-4 недели. Вместе с получением необходимых согласований.
Квалификация и опыт наших проектировщиков позволяют одинаково эффективно проектировать любые виды систем кондиционирования: начиная с самых простых сплит-систем, заканчивая сложными и масштабными прецизионными и центральными системами. Также работаем с самыми современными и мощными VFR/VRV и чиллер-фанкойл.
Действующая нормативная база требует обязательного согласования установки кондиционера мощностью от 3 кВт. Однако при размещении одного из блоков кондиционера на фасаде здания необходимо получение разрешения на монтаж и менее мощного оборудования.
Работой этой компании очень довольна, проектировали вентиляцию. Все качественно и в срок, работает уже несколько лет, никаких нареканий, молодцы. Всем рекомендую
Данная компания занималась проектированием и монтажом системы вентиляции квартиры. Работы выполнили качественно, аккуратно и чисто. Смогли найти нестандартное решение по разводке воздуховодов для сохранения дизайнерских решений.
Оставляю свой отзыв о компании Стройэлит. Обращался к ним за проектом вентиляции и кондиционирования в производственное помещение. Думал что они работают только по Иваново, а оказалось и во Владимире тоже берут проекты. Цены хорошие, сделали что нужно и в срок. Спасибо!






Свяжитесь с нами
Оставьте заявку и мы перезвоним в течение 15 минут