Пн - Пт 08:30 - 17:30
Рассчитать проектЛенинградский пр., д. 33
Пн - Пт 08:30 - 17:30
консультация инженера
Компания “СтройЭлит” предлагает услуги по проектированию котельных для объектов различного назначения. Мы разрабатываем проекты котельных в соответствии со стандартами эффективности и безопасности, учитывая индивидуальные требования заказчика.
Проект котельной необходим для обеспечения эффективного, безопасного и экономичного отопления здания. Он требуется для нового строительства, капитального ремонта или модернизации системы отопления, а также при смене типа топлива или мощности оборудования.
На данный момент в Ярославле мы работаем только с крупными инженерными объектами: коммерческие, промышленные, производственные помещения и частные дома от 400 кв. м.
Стоимость проектирования котельной зависит от множества факторов, таких как:
Для получения точной сметы на проектирование обратитесь к нашим специалистам.
Вот основные этапы работ при проектировании котельных:
Определение потребностей заказчика и требований к котельной.
Подбор типа и мощности основного котельного оборудования.
Выполнение всех необходимых инженерных расчётов, включая расход топлива, мощность и размеры котельной. Определение расположения котельной и путей коммуникаций.
Подбор теплообменного аппарата, химводоочистки, дымоходов и прочего.
Разработка мероприятий по обеспечению безопасности и соответствия экологическим стандартам.
Подготовка всех необходимых чертежей, схем и инструкций.
Получение разрешений от надзорных органов и передача готового проекта для монтажных работ.
Классификация котельных помогает выбрать наиболее подходящий вариант для конкретного объекта. Котельные могут классифицироваться по различным критериям: виду топлива, мощности, способу установки и области (объекту) применения.
Сотрудники нашей компании имеют большой опыт проектирования котельных для совершенно разных типов зданий. Выбор наиболее подходящего типа котельной (по виду топлива) имеет решающее значение для безопасности, а также технической и экономической эффективности любого объекта.






В жилых зданиях чаще всего используются газовые или электрические котельные. Они компактны, экономичны и относительно просты в обслуживании. Важной особенностью является их способность обеспечивать комфортное тепло при минимальных затратах энергии. При технической возможности рекомендуется отдавать предпочтение газовым котельным ввиду их скорейшей окупаемости и относительно низким эксплуатационным затратам.
Промышленные котельные обычно предназначены для работы на твердом топливе или газе, обладают высокой мощностью и способны обеспечивать теплом большие площади. Основное внимание при проектировании следует уделять их надежности, эффективности и возможности модернизации под конкретные производственные нужды.
Котельные для помещений данного типа часто требуют индивидуального подхода. Следует учитывать при проектировании, что данные котельные должны иметь, как правило, высокую мощность, быть адаптированы к специфике здания, а также быть гибкими в управлении: обеспечивать оптимальный климат при различной интенсивности использования.
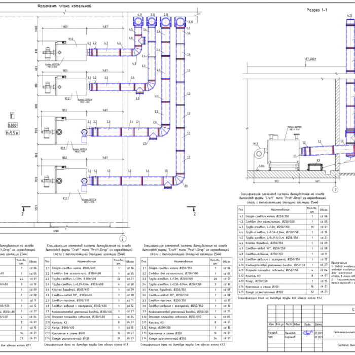
Проект котельной – это комплексный документ, который учитывает все аспекты строительства и эксплуатации котельной, гарантирует её безопасность, эффективность, соответствие всем нормам и стандартам.
Проектная документация котельной включает в себя следующие основные элементы:
Чтобы сделать котельную экономичной, можно использовать следующие подходы:
Мы работаем с различными типами котельных (по видам топлива, мощности и области применения).
Сроки зависят от сложности и объёма проекта, но обычно составляют от 4 до 6 недель.
При проектировании учитываются многие факторы, включая тип топлива, мощность оборудования, площадь объекта, экологические и безопасные нормы.
Основные требования к строительству котельных в России включают соблюдение строительных норм и правил (СНиП), пожарных норм безопасности, экологических стандартов, а также норм энергоэффективности. Важно учитывать местоположение котельной, её доступность для обслуживания и пожарных служб, а также обеспечение адекватной вентиляции и безопасного хранения топлива.
Строительство должно осуществляться с учетом всех требований к безопасности, эффективности и воздействию на окружающую среду.



Свяжитесь с нами
Оставьте заявку и мы перезвоним в течение 15 минут